Emirates Hills

The Villa – A striking modern contemporary villa where every corner and every square foot has been meticulously refined to achieve the perfect balance between bold design and intelligent practicality. Clean architectural lines and thoughtfully planned spaces create a home that is powerful, sophisticated, and effortlessly luxurious

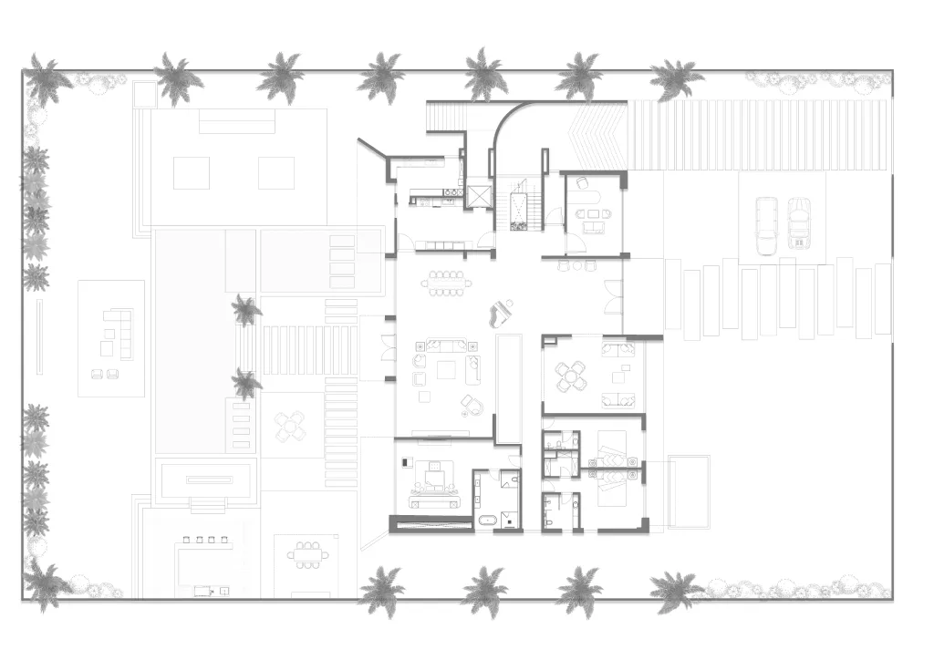
Precision on Paper

The journey of the Emirates Hills villa began with a commitment to “intelligent practicality.” Our initial sketches focused on maximizing the footprint while maintaining a sense of airy, open-concept grandeur. This raw drawing captures the early vision of a home defined by its geometry—a series of intersecting planes and volumes designed to command attention from the curb.

Explore the Perspective

Architecture of this caliber is best understood through movement. Our 3D cinematic videos allow you to experience the striking proportions and meticulously refined interiors of the Emirates Hills villa, bringing the “Nest Designs” signature precision to life on screen.